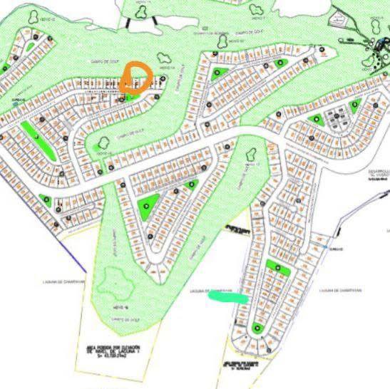
Fracc. Lagunas de Miralta, Altamira
$3,712,000.00 MXN
Espectacular terreno Lagunas de Miralta de 640 m2 con una increíble vista frente al green. Al frente hay una área verde que nadie podrá construir.
Ejido Mata del Labra, Altamira.
$130,000,000.00 MXN
Col. Linda Vista, Tampico
$19,000.00 MXNMensual
Ejido Medrano, Altamira
$140,000,000.00 MXN
Col. Florida, Tampico
$15,000.00 MXNMensual
Col. El Charro, Tampico
$9,250,000.00 MXN
Col. Universidad Poniente, Tampico
$3,300,000.00 MXN
Fracc. Santa Elena, Altamira
$1,020,000.00 MXN
Ejido Villa de Altamira
$43,605,000.00 MXN
Col. Minerva, Tampico
$45,000.00 MXNMensual